Tọa lạc tại vị trí “4 mặt tiền” đường huyết mạch Quốc lộ 50 – Tạ Quang Bửu, phường 6, Quận 8, TP.HCM, Saigon Skyview không chỉ là nơi an cư lý tưởng cho gia đình trẻ và chuyên gia mà còn là kênh đầu tư sinh lời hấp dẫn nhờ mật độ xây dựng thấp 40%, tiện ích thương mại sầm uất và giá bán cạnh tranh từ 1,45 tỷ đồng/căn.
Tổng quan về dự án Saigon Skyview
Saigon Skyview, tên pháp lý là Chung cư Bình Đăng, là dự án căn hộ cao cấp kết hợp thương mại dịch vụ do Công ty Cổ phần Phát triển Địa Ốc Sài Gòn 5 làm chủ đầu tư, phát triển bởi Đất Xanh Miền Nam.

Dự án được thiết kế bởi Công ty CP Kiến trúc Xây dựng Phú Thuận, thi công bởi FBV (hoặc CC1 theo một số nguồn), giám sát bởi SCQC và quản lý bởi Nageco, đảm bảo tiêu chuẩn cao cấp. Điểm độc đáo nhất của Saigon Skyview chính là 2 tầng hầm được thiết kế kết nối trực tiếp với nhà ga S7 tuyến Metro số 5 – giải pháp đã được duyệt bản vẽ chi tiết, biến dự án thành “cầu nối” hoàn hảo giữa bất động sản và giao thông công cộng tương lai.
| Tên dự án | Saigon Skyview (Chung cư Bình Đăng) |
| Chủ đầu tư | Công ty Cổ phần Phát triển Địa Ốc Sài Gòn 5 |
| Phát triển | Đất Xanh Miền Nam |
| Vị trí | Quốc lộ 50 – Tạ Quang Bửu, phường 6, Quận 8, TP.HCM |
| Tổng diện tích | 4.606,5 m² |
| Quy mô | 1 block cao 21 tầng + 2 tầng hầm + 1 tầng mái |
| Số lượng căn hộ | 276 căn (2-3 PN) |
| Diện tích căn hộ | 62,44 – 85,1 m² |
| Mật độ xây dựng | 40% |
| Pháp lý | Hoàn chỉnh, GPXD, sổ hồng lâu dài |
| Tiến độ | Khởi công 3/2018, bàn giao Q2/2020, đang nhận booking 10/2025 |
| Đơn vị thi công | FBV / CC1 |
| Giám sát | SCQC |
Vị trí đắc địa và liên kết vùng
Vị trí chính là “vũ khí bí mật” khiến Saigon Skyview nổi bật giữa muôn vàn dự án tại Quận 8, với 4 mặt tiền đường lớn:
- Phía Đông giáp Quốc lộ 50 (40m)
- Phía Tây giáp đường số 4 (20m)
- Phía Nam giáp đường số 7 (20m)
- Phía Bắc giáp đường số 5 (20m)
Nằm ngay ngã tư Tạ Quang Bửu – Quốc lộ 50, dự án kế cận cầu Nhị Thiên Đường và cầu Nguyễn Tri Phương, tạo lợi thế kết nối đa chiều với các quận trung tâm. Từ đây, cư dân chỉ mất 5 phút đến Quận 5 và Quận 10 qua cầu Nhị Thiên Đường, 10 phút đến Phú Mỹ Hưng và trung tâm hành chính Quận 7 qua Nguyễn Văn Linh, 15 phút đến chợ Bến Thành Quận 1 theo Võ Văn Kiệt và dễ dàng tiếp cận hầm Thủ Thiêm để sang Quận 2.
Điểm nhấn vượt trội của Saigon Skyview là tầng hầm kết nối trực tiếp với nhà ga S7 tuyến Metro số 5 – dự án duy nhất tại Quận 8 sở hữu đặc quyền này, giúp cư dân di chuyển đến trung tâm TP.HCM chỉ trong 10-15 phút mà không lo ùn tắc. Khu vực còn liền kề nhà ga số 10 và đường Vành Đai 2 đã thông xe, cùng các tuyến huyết mạch như Đại lộ Nguyễn Văn Linh, tăng cường giá trị đầu tư khi hạ tầng Quận 8 dự kiến hoàn thiện toàn diện vào 2026.

Về tiện ích ngoại khu, dự án bao quanh bởi:
- Hệ thống chợ sầm uất như Bình Điền, An Đông, Kim Biên
- Siêu thị CoopMart, Lotte Mart, Centre Mall Phạm Hùng
- Bệnh viện FV, Đại học Y Dược, Pháp Việt, Tim Tâm Đức
- Trường học quốc tế như THPT Tạ Quang Bửu, RMIT, Đại học Khoa học Tự Nhiên
- Khu giải trí gần kề với cầu Ánh Sao, hồ Bán Nguyệt và công viên Park City
So với các dự án lân cận, vị trí “4 mặt tiền” và kết nối Metro của Saigon Skyview mang lại lợi thế cạnh tranh rõ rệt, không chỉ tiện lợi cho sinh hoạt hàng ngày mà còn đẩy mạnh tiềm năng tăng giá đất lên 20-25% hàng năm, đặc biệt khi tuyến Metro số 5 đi vào hoạt động.

Tiện ích nội khu đa dạng
Saigon Skyview được thiết kế như một “thành phố thu nhỏ” với hệ thống tiện ích nội khu đa dạng, tập trung vào lối sống tiện nghi và nghỉ dưỡng, phù hợp cho mọi lứa tuổi. Với mật độ xây dựng thấp 40%, dự án dành hơn 60% diện tích cho không gian xanh và tiện ích:
- Hồ bơi tràn đẳng cấp đạt tiêu chuẩn resort cho cả người lớn và trẻ em
- 5 tầng trung tâm thương mại với đa dạng ngành hàng cho cư dân thỏa sức mua sắm
- Khu vui chơi giải trí cho trẻ em, đường dạo bộ, thư viện, nhà trẻ,…
- Phòng tập gym, yoga, chăm sóc sức khỏe cho gia đình
- Hệ thống công viên xanh mát ngay phía dưới tòa chung cư với đa dạng các loại cây hoa khoe sắc
- Vườn nướng BBQ cho gia đình quây quần bên nhau ngày cuối tuần
- Rạp chiếu phim 3D, 4D hấp dẫn
- Hệ thống camera giám sát 24/24 đảm bảo an ninh.

Mặt bằng quy hoạch và thiết kế
Tổng quan mặt bằng
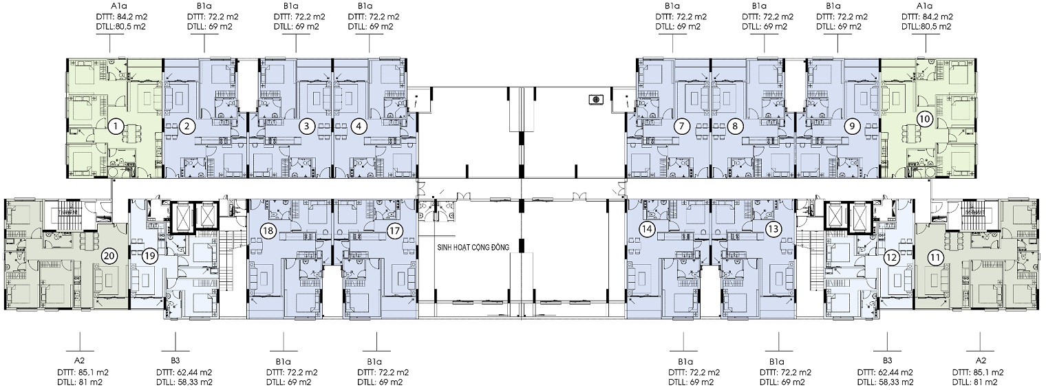
Mặt bằng quy hoạch của Saigon Skyview được tối ưu hóa trên tổng diện tích xây dựng hơn 4.000 m², với quy mô compact chỉ 1 block duy nhất cao 21 tầng và 2 tầng hầm, đảm bảo lưu thông dễ dàng và không gian thoáng đãng. Mật độ xây dựng 40% ưu tiên giao thông nội bộ rộng rãi (đường đôi 6m), bãi đỗ xe tại hầm với tỷ lệ 1:1 và không gian công cộng xanh mát.

- 2 tầng hầm: Dành cho đỗ xe và kết nối trực tiếp với nhà ga S7 tuyến Metro số 5, tạo lợi thế di chuyển độc quyền.
- Tầng 1-3: Shop-office sầm uất, phù hợp kinh doanh hoặc cho thuê.

- Tầng 4: Food-court đa dạng ẩm thực, thu hút dòng người qua lại.
- Tầng 5: Rạp chiếu phim hiện đại, điểm nhấn giải trí nội khu.

- Tầng 6-7: Trung tâm thương mại với siêu thị, shophouse và dịch vụ tiện ích.
- Tầng 8-21: Khu căn hộ chung cư 2-3 phòng ngủ, mỗi tầng khoảng 20 căn, đảm bảo mật độ dân cư thấp và tầm view thông thoáng.

Quy hoạch nhấn mạnh sự hài hòa giữa chức năng thương mại và cư trú, với khuôn viên nội khu lớn tạo dòng chảy năng lượng tích cực cho hơn 800 cư dân tương lai.
Thiết kế chi tiết
Thiết kế của Saigon Skyview theo phong cách Singapore hiện đại và đẳng cấp, tập trung vào sự vuông vắn, thông thoáng và hài hòa giữa không gian chung – riêng để đáp ứng nhu cầu sinh hoạt đa dạng của gia đình.

Giá bán dự án Saigon Skyview
Giá bán tại Saigon Skyview được định vị cạnh tranh ở phân khúc trung – cao cấp, dao động từ 21-62 triệu đồng/m² (tùy nguồn cập nhật), tương đương từ 1,45-2,3 tỷ đồng/căn, phù hợp với nhà đầu tư nhỏ lẻ và gia đình trẻ.

5 lý do nên đầu tư vào dự án Saigon Skyview
- Vị trí 4 mặt tiền kết nối Metro độc quyền: Nằm tại ngã tư huyết mạch Quận 8, tầng hầm nối trực tiếp ga S7 tuyến Metro số 5 – lợi thế duy nhất giúp tăng giá trị 20-25%/năm khi hạ tầng hoàn thiện.
- Tiện ích thương mại sầm uất đầu tiên khu vực: 6 tầng khối đế với rạp phim, food-court, trung tâm mua sắm – thu hút dòng người, lý tưởng cho shophouse kinh doanh hoặc cho thuê sinh lời ổn định 8-10%/năm.
- Mật độ thấp, thiết kế Singapore hiện đại: Chỉ 276 căn trên 21 tầng, không gian xanh 60%, căn hộ vuông vắn đón gió trời – nâng chất lượng sống và dễ dàng cho thuê dài hạn cho chuyên gia.
- Giá bán cạnh tranh, pháp lý minh bạch: Từ 1,45 tỷ/căn, sổ hồng lâu dài, bảo lãnh ngân hàng – giảm rủi ro, phù hợp đầu tư nhỏ lẻ với thanh toán linh hoạt.
- Tiềm năng tăng trưởng Nam Sài Gòn: Hưởng lợi từ đô thị hóa Quận 8, gần Phú Mỹ Hưng và trung tâm Quận 1, dự án trở thành “tâm điểm” sinh lời khi Metro hoạt động, ROI vượt trội so với khu lân cận.
>> Xem thêm bài viết Review Masteri Park Place – “downtown” mới của khu Đông Sài Gòn
** Tuyên bố miễn trừ trách nhiệm: Muanha.xyz thực hiện bài viết này với mục đích cung cấp thông tin tham khảo. Thông tin có thể được thay đổi mà không cần thông báo trước. Chúng tôi nỗ lực thực hiện và đảm bảo tính chính xác của bài viết nhưng không chịu trách nhiệm về tổn thất hoặc hậu quả từ việc sử dụng thông tin trong đây.

